タウンズ八王子オークヒル

諸費用サービス・ご見学・ご成約キャンペーン実施中 フリーダイヤルにてお問合せ下さい。

価格 3680万円  中古マンション  間取 3LDK

共益費・管理費 14770円  借地期間

所在地 東京都八王子市狭間町
交通 京王高尾線狭間駅 徒歩640m / JR中央線高尾駅 徒歩1600m
築年月 平成10年02月
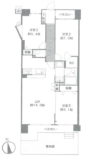
新規内装リノベーション物件です(外観)
(間取)
(外観)
新規内装リノベーション物件です(外観)(間取)(外観)

スタッフよりおすすめポイント スタッフよりおすすめポイント

3680万円の正規仲介手数料は 約 129万円になりますが、 弊社は仲介手数料 0円(無料)ですので、諸費用の部分もかなり、お安くなります。

この他にも、売主様等のご都合により、弊社HPに掲載されていない広告掲載不可物件も多数ございます。 気になる物件、他社様に掲載されている物件もご紹介が出来ますので、お気軽にフリーダイヤル 0120-905-882までお問合せ下さい。

またその他、ご質問・ご不明な点が御座いましたらお気軽にご連絡下さい。

他社様の物件や広告の物件も仲介手数料無料で初期費用を安くする様、最大限に努力を致します。
~当社提携、都市銀行の優遇金利対象物件です~

御来店の必要ありませんし、しつこい営業もいたしませんので、お気軽にお問い合わせください。

物件概要

築年月

1998/02

新築/中古

中古

建物面積

74.62m²

計測方式

壁芯

バルコニー

17.74m²

向き

建物階数

地上5階 

部屋階数

1階

部屋・区画番号

106

総戸/区画数

536

建物構造

RC

管理形状

全部委託  管理人日勤 

間取内容

LDK14畳 洋室5.4畳 洋室7畳 洋室5.1畳      

住宅保険料

修繕積立金

12690円

駐車場

2000円 空有 月額 2000円~6000円

取引態様

仲介

引渡/入居時期

即時

現況

空家

私道負担面積

0m²

土地権利

所有権

接道状況

国土法届出

不要

周辺環境

施設・条件

ガスコンロ 三口コンロ システムキッチン カウンターキッチン 給湯 独立洗面台 バス専用 シャワー トイレ専用 バス・トイレ別 温水洗浄便座 W.INクローゼット 室内洗濯機置き場 都市ガス 公営水道 排水下水 エレベータ 駐輪場 バイク置き場 専用庭 出窓 バルコニー フローリング

物件番号

492353

掲載期限日

2025/08/25

自社物

先物

状態

売出中

タウンズ八王子オークヒルにお問い合わせ

  • STEP1
  • STEP2
※必須項目です。

次へ

※必須項目です。
※必須項目です。
※必須項目です。
Please leave this field empty.
 

※この物件の価格が下がったらすぐ知りたい方へメールをお送りします!

※物件ごとに登録が可能です。

物件ID

Please leave this field empty.

条件を教えていただければ代わりに希望の物件を探します。

この物件の問い合わせ先

株式会社 スターフォレストお問い合わせはこちら