清瀬南パークホームズ

内覧予約、フリーコールにて受付中です。弊社独自のサービスがあります。下記備考欄をご覧ください

価格 3880万円  中古マンション  間取 3LDK

共益費・管理費 9600円 

所在地 埼玉県新座市新堀3丁目
交通 西武池袋線 徒歩800m
築年月 Mar-99年月
(外観)
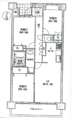
新規内装リフォーム(間取)
(外観)新規内装リフォーム(間取)

スタッフよりおすすめポイント スタッフよりおすすめポイント

3880万円の正規仲介手数料は 約 135万円になりますが、 弊社は仲介手数料 0円(無料)ですので、諸費用の部分もかなり、お安くなります。

この他にも、売主様等のご都合により、弊社HPに掲載されていない広告掲載不可物件も多数ございます。 気になる物件、他社様に掲載されている物件もご紹介が出来ますので、お気軽にフリーダイヤル 0120-905-882までお問合せ下さい。

またその他、ご質問・ご不明な点が御座いましたらお気軽にご連絡下さい。

他社様の物件や広告の物件も仲介手数料無料で初期費用を安くする様、最大限に努力を致します。
~当社提携、都市銀行の優遇金利対象物件です~

御来店の必要ありませんし、しつこい営業もいたしませんので、お気軽にお問い合わせください。

物件概要

築年月

Mar-99

新築/中古

中古

建物面積

69.54m²

計測方式

壁芯

バルコニー

9m²

向き

建物階数

地上9階 

部屋階数

6階

部屋・区画番号

607

総戸/区画数

76

建物構造

RC

管理形状

全部委託  管理人日勤 

間取内容

LDK13.2畳1室  洋室6.3畳1室  洋室6畳1室        

住宅保険料

修繕積立金

8840円

駐車場

 

取引態様

仲介

引渡/入居時期

相談

現況

空家

私道負担面積

0m²

土地権利

所有権

接道状況

国土法届出

不要

周辺環境

施設・条件

三口コンロ システムキッチン 独立洗面台 バス専用 浴室乾燥機 バス・トイレ別 その他ガス 公営水道 排水下水 エレベータ バルコニー

物件番号

KGO035982

掲載期限日

2025/12/31

自社物

先物

状態

売出中

清瀬南パークホームズにお問い合わせ

  • STEP1
  • STEP2
※必須項目です。

次へ

※必須項目です。
※必須項目です。
※必須項目です。
Please leave this field empty.
 

※この物件の価格が下がったらすぐ知りたい方へメールをお送りします!

※物件ごとに登録が可能です。

物件ID

Please leave this field empty.

条件を教えていただければ代わりに希望の物件を探します。

この物件の問い合わせ先

株式会社 スターフォレストお問い合わせはこちら